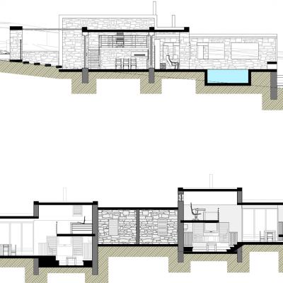
Συνολική επιφάνεια κτιρίων 200 μ². Χρόνος μελέτης 2008.
Υπεύθυνος μελέτης : Ανηψητάκη Βασιλεία, Αθανασούλης Πάνος
© 2017 KAAM architects / Powered by FavorWeb