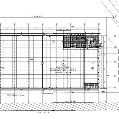
Συνολική επιφάνεια : 4000 μ², Χρόνος μελέτης 2005
Υπεύθυνος μελέτης : Μοίρας Νίκος
© 2017 KAAM architects / Powered by FavorWeb